

-
Let`s have fun!! ワクワクをいっぱいに
株式会社ネクスト
入社のご挨拶
この度、10/19(金)に「横浜スタジオ」オープンに際しまして入社いたしました長友です。
これまで「船橋スタジオ」のみのご案内でしたが、「横浜スタジオ」がオープンすることでより多くの皆様に〝ワクワクする家造り″をお届け出来るようになります!

皆様と〝ワクワクする家造り″をご一緒出来るのを楽しみにしております。
よろしくお願いいたします。
よろしくお願いいたします。
簡単に自己紹介を
職人である父親に憧れて、小さい時から現場に出たり、図面を見るのが好きでした。
自然と建築不動産の道に進むことになりますが、様々建築の種類がある中でも、暮らしの基盤をつくる〝住宅″に想いがあり、これまでずっと住宅を取り扱う仕事をしてきました。
自然と建築不動産の道に進むことになりますが、様々建築の種類がある中でも、暮らしの基盤をつくる〝住宅″に想いがあり、これまでずっと住宅を取り扱う仕事をしてきました。

これまで注文住宅、建売住宅、新築マンション、リノベーションマンション、多種多様な物件を取り扱ってきた経験から、お客様にとってどんな選択がベストか、幅広くご提案させていただきたいと思っております。
場合によっては、注文住宅が欲しいと言われても、中古マンションがおススメです!と言うかもしれません(笑)生まれてから20年東京都目黒区で育ち、その後10年を川崎市中原区、結婚してこれまで横浜市中区で暮らしています。だんだん南下しており、次は湘南エリアか?などと考えています。
ちょうどネクスト「横浜スタジオ」の取り扱いメインエリアをたどってきている足跡です。土地も幅広く見てきて実体験もありますので、地元に住む良さのほか、未開の地の楽しみ方なんかもお伝え出来ればと思っています。
長くなりましたが、最後に弊社取り扱いコンテンツの中でのお気に入りのご紹介をさせてください。
お気に入りの商品
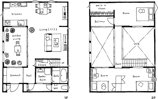
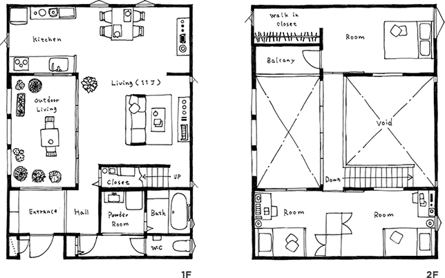
どれもこれもワクワクする住宅ばかりなのですが、私は、インテリアブランドのIDÉEとのコラボレーション住宅HOUSE CANVASが好きです!

妻と、2人の娘と犬と暮らしている我が家にぴったりな間取りと、シンプルなデザインで住まい手が手を加えていくことで魅力が増す、経年変化を楽しむ家。


皆さま、家を買ったらキレイにしなきゃなど、神経質に考えてませんか?
失敗を恐れずどんどん自分達色に染めてしまう事をおススメします!
失敗を恐れずどんどん自分達色に染めてしまう事をおススメします!
どんどんどんどん家が好きになって、それが家を大切にする心を育んでいくことになります。
失敗したら、ちょうど破けた服を縫って直すように、リノベーションすれば良いんです。育ち盛りの子どもがいる我が家のリビングの壁は、子どもたちのCANVASになっています。ちょっとやり過ぎかな?と思う程(笑)

壁を塗り直せば、貼り替えればいいやと思っていますが、落書きが愛おしくて、しばらくはこのままにしておこうと思います。
皆さまは、どんな住宅にワクワクしますか?
皆さまが感じたワクワクなお話を聞くのが三度の飯よりも好物なので、是非溢れる想いをお聞かせいただきたいと思います!
新たにオープンする「横浜スタジオ」でお待ちしております!
よろしくお願いいたします。
よろしくお願いいたします。










